Blandt roterende fjederenergiserede tætninger er der hovedsageligt to typer: RC2055 og RC2056. Ruichen SEALS har undersøgt udviklingen og fremstillingen af seglprodukter i mange år. I henhold til forskellige situationer og forskellige behov har det perfektioneret mere detaljerede design.
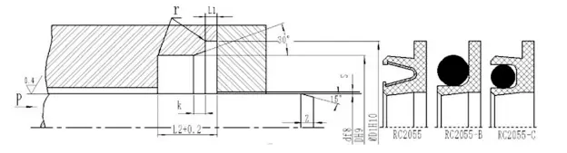
RC2055 er en roterende pan-plug-tætning, RC2055-B er en roterende tandstætning, og RC2055-C er en roterende Y-formet kombinationstætning. Rillerne fra de tre kan udskiftes. De er højfunktionsæler med ensrettet tryk påført roterende aksler. Blandt dem er RC2055 Rotary Pan-Plug Seal sammensat af rustfrit stålfjedre og højfunktionsplast. Når du bruger RC2055-B og RC2055-C, er det nødvendigt at rimeligt vælge de matchende elastomermaterialer.
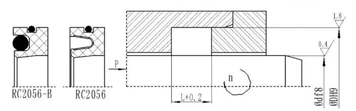
RC2056 er en roterende pan-plug-tætning, og RC2056-B er en roterende Y-formet kombinationstætning. Rillerne kan også udskiftes. Det er også velegnet til brug i roterende aksler. Blandt dem er RC2056 Rotary Pan-Plug Seal sammensat af rustfrit stålfjedre og højfunktionsplast. Når du bruger RC2056-B, og det er nødvendigt at rimeligt vælge de matchende elastomermaterialer.
Produktfunktioner og applikationer:
Produktfunktioner:
Høj ydeevne: Rustfrit stålfjedre og højfunktionsplastik kombineres for at sikre fremragende tætningsydelse og holdbarhed.
Udskiftelighed: Groove -designet af produkterne i serien er det samme, hvilket muliggør udskiftelighed og fleksibel tilpasning til forskellige arbejdsvilkår.
Meget anvendelig: Velegnet til envejs trykforsegling af roterende aksler for at imødekomme forskellige industrielle behov.
Valgfrie elastomerer: RC2055-B, RC2055-C og RC2056-B understøtter udvælgelsen af matchende elastomermaterialer i henhold til arbejdsvilkårene for at forbedre tilpasningsevnen.
Applikationsscenarier:
Envejs trykforsegling af roterende aksler er velegnet til industrielt udstyr, ingeniørmaskiner, hydrauliske systemer osv.
Lejligheder, hvor højfunktionsforsegling er påkrævet, såsom petrokemikalier, energiudstyr, tunge maskiner osv.
Tekniske fordele:
Rustfrit stålfjedre giver stabil radial kraft for at sikre langvarig tætningseffekt.
Kombinationen af højfunktionsplastik og elastomermaterialer er velegnet til arbejdsvilkår for høj tryk og højhastighed.
Groove udskifteligt design forenkler installation og vedligeholdelse og reducerer brugsomkostningerne.
Forslag til brug:
Vælg den relevante tætningsmodel og elastomermateriale i henhold til de specifikke arbejdsvilkår.
Sørg for, at rillen er ren under installationen for at undgå skader på tætningen.
RC2055
Gældende arbejdsvilkår (grænseværdier bør ikke vises på samme tid)
| Tryk (MPA) | Temperatur (℃) | Hastighed (m/s) | Medium | |||
| ≤35 | RC2055 | RC2055-B/c | RC2055 | RC2055-B | RC2055-C | Næsten alle flydende og gasmedier |
| -200 ~+250 | -35 ~+250 | <2m/s | <6m/s | <2m/s | ||
Valg af materiale
1.. De matchende O-ringematerialer kan vælges: RO1 nitrilgummi (NBR), RO2 fluororubber (FKM) osv.
2. Forseglingsringmaterialer: PTFE1, PTFE2, PTFE3, PTFE4, UPE, PK1, PK2 osv.
3. rustfrit stålfjeder: V-formet forår.
Bestillingseksempel
RC2055- 40-PTFE4+V skaftdiameter 40, tætningsringmateriale er PTFE4, rustfrit stålfjeder er V-formet forår
RC2055-B-40-PTFE4+R02 skaftdiameter er 40, forseglingsringmateriale er PTFE4, matchende O-ring er fluororubber
RC2055-C-40-PTFE4+R02 skaftdiameter er 40, forseglingsringmateriale er PTFE4, matchende O-ring er fluororubber
Specifikationsparametertabel (alle specifikationer inden for parameterområdet er tilgængelige)
| Roddiameterområde D F8 | Groove Diameter Dh9 | Groove Diameter D1H10 | Kantdybde L1 | Groove bredde L | Import affyr k | Radial clearance S max | Afskåret længde | r maks | |
| 10MPa | 20MPa | ||||||||
| 5 ~ 19.9 | D+5 | D+9 | 0,85 -0,1 | 3.6 | 0.3 | 0.15 | 0.1 | Zmin = 0,8L | 0.8 |
| 20 ~ 39.9 | D+7 | D+12.5 | 1,35 -0,15 | 4.8 | 0.4 | 0.20 | 0.15 | 1.1 | |
| 40 ~ 400,9 | D+10.5 | D+17.5 | 1,8 -0,2 | 7.1 | 0.5 | 0.25 | 0.20 | 1.4 | |
| 401 ~ 1500 | D+14 | D+22 | 2,8 -0,2 | 9.5 | 0.5 | 0.30 | 0.25 | 1.6 | |
Bemærk: Det anbefales, at overfladenhårdheden af den roterende skaft skal være HRC ≥ 58.
RC2056
Gældende arbejdsvilkår (grænseværdier bør ikke vises på samme tid)
| Tryk (MPA) | Temperatur (℃) | Hastighed (m/s) | Medium | ||
| ≤2 | RC2056 | RC2056-B | RC2056 | RC2056-B | Næsten alle flydende og gasmedier |
| -200 ~+250 | -35 ~+250 | <14m/s | <6m/s | ||
Valg af materiale
1.. De matchende O-ringematerialer kan vælges: RO1 nitrilgummi (NBR), RO2 fluororubber (FKM) osv.
2. Forseglingsringmaterialer: PTFE1, PTFE2, PTFE3, PTFE4, UPE, PK1, PK2 osv. 3. rustfrit stålfjeder: V-formet forår.
Bestillingseksempel
RC2056-40*62*8-PTFE4+V D*D*L, tætningsringmaterialet er PTFE4, og det rustfrie stålfjeder er en V-formet fjeder RC2056-B-40*62*8-PTFE4+R02 D*D*L, tætningsringmaterialet er PTFE4, og den matchende O-ring er fluororubber



















Adresse
No.1 Ruichen Road, Dongliuting Industrial Park, Chengyang District, Qingdao City, Shandong Province, Kina
Tlf